Stanovanje je razporejeno v dveh etažah (dupleks), kar omogoča ločeno dnevno in spalno cono ter večjo funkcionalnost bivanja.
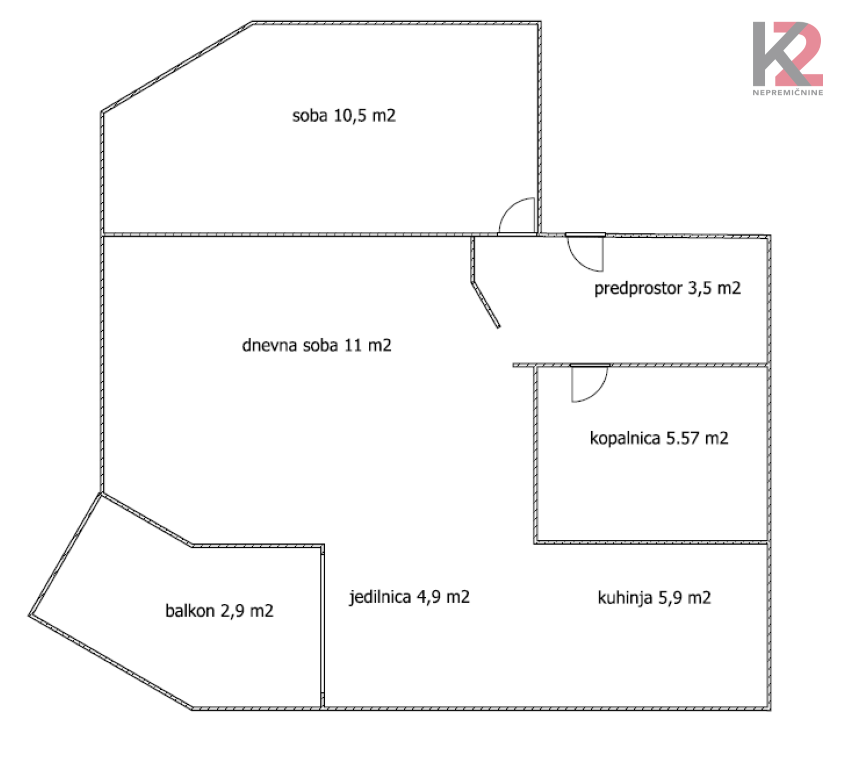
Obsega:
– dnevni prostor s kuhinjo in jedilnico
– več sob, primernih za spalnice ali delovni prostor
– kopalnico in dodatni WC
– balkon
– kletni prostor (15,4 m²)
Objekt je bil zgrajen leta 1984 in delno obnovljen (2015). Stanovanje je vzdrževano in vseljivo.
LOKACIJA:
Stanovanje se nahaja v neposredni bližini šole, trgovine, banke, bolnišnice in ostale infrastrukture. Lokacija omogoča hitro dostopnost do centra mesta.
PRIMERNO ZA:
– družine
– mlade pare
– investitorje (oddajanje)
Ogrevanje je urejeno preko daljinskega sistema.
Stanovanje je vseljivo brez večjih takojšnjih investicij.
Odlična izbira za družino, ki išče prostorno stanovanje na mirni, a hkrati dostopni lokaciji.
Zaradi razporeditve in lokacije je stanovanje primerno tudi kot investicija za oddajanje.
Nepremičnina je vpisana v zemljiško knjigo in je brez bremen. Možen hiter prevzem po dogovoru.
Ponudbeni pogoj:
Ponudbeni pogoj prodajalca: kupec prevzame plačilo davka na promet nepremičnin!
Za dodatne informacije ali dogovor za ogled smo vam na voljo.
| Trgovina | 150m |
| Avtobusna postaja | 300m |
| Restavracija | 600m |
| Frizerski salon | 100m |
| Banka | 200m |
| Šola | 200m |
| El. polnilna postaja | 300m |
| Park/igrišče | 400m |
| Knjižnica | 650m |
| Bolnišnica/zdravstveni dom | 1300m |

Št. licence: 0236602334